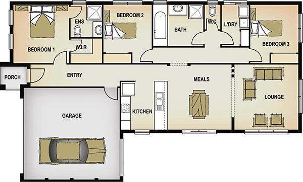
18sq home consisting of 3 bedrooms, 2 bathrooms and a double garage suitable for first home buyers and investors.




House Area: 14.26sq
Porch Area: 0.26sq
Garage Area: 4.04sq
Total Area: 18.41sq
House Lenght: 18.2m
House Width: 11.35m
Min. Block Width: 12.5m
If you can’t find a house you like, we are also able to build custom homes to suit your needs.
FIND OUT MORE